Navigatie overslaan

Hof van Eden

Kenmerken

Let op! Dit zijn algemene foto's van het Fokusproject en de omgeving. Ze zijn niet van de specifieke woning. Zie de plattegrond van de woning onder het kopje Downloads.

  • Etage: Begane grond
  • Aantal kamers: 3
  • Status: Binnenkort beschikbaar
  • Verhuurder: Trudo/Wooninc.
  • Indicatie bruto huurprijs: € 721,96
  • Indicatie netto huurprijs: € 682,96

Reageer voor 27 november 2025

Reageren op deze woning

Hof van Eden

  • Noord-Brabant
  • 3 Kamers

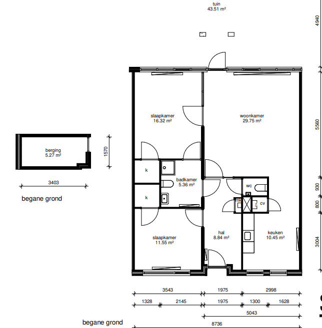
De woning heeft een woonkamer met halfopen (aangepaste onderrijdbare) keuken (totaal 40 m2) en 2 slaapkamers (12 m2 en 16 m2). De woning is volledig voorzien van automatische deuren, zowel toegangsdeur, als achterzijde en binnenzijde naar alle ruimtes. Eén van de slaapkamers heeft een railsysteem op het plafond t.b.v. bed en/of plafondlift.  Verder is er een mechanische/automatisch bedienbaar railsysteem t.b.v. gordijnen. Lamellen aan de voorzijde in de keuken zijn ter overname. Achter de woning ligt een tuin (met berging), die via de woonkamer bereikbaar is. Het Fokusproject Eindhoven Hof van Eden ligt op een steenworp afstand van het stadscentrum van Eindhoven in een rustige, groene wijk. Alle voorzieningen, zoals winkels, huisarts, apotheek etc. liggen op circa 300 meter afstand. Kijkt u voor de indeling van de woning op de plattegrond.

Downloads

Eindhoven Hof van Eden

Het Fokusproject Eindhoven Hof van Eden bestaat uit twaalf ruime woningen, met twee, drie- of vier kamers. Hof van Eden in Eindhoven is een modern en licht wooncomplex. Een aantal Fokuswoningen ligt op een woonerf en een aantal woningen aan een doorgaande weg. De moderne woningen hebben een tuin of balkon. De Fokuswoningen liggen op een steenworp afstand van het stadscentrum van Eindhoven, in een rustige, groene wijk. Alle voorzieningen, zoals winkels, een huisarts en een apotheek, liggen op circa 300 meter afstand.