Navigatie overslaan

Kenmerken

Let op! Dit zijn algemene foto's van het Fokusproject en de omgeving. Ze zijn niet van de specifieke woning. Zie de plattegrond van de woning onder het kopje Downloads.

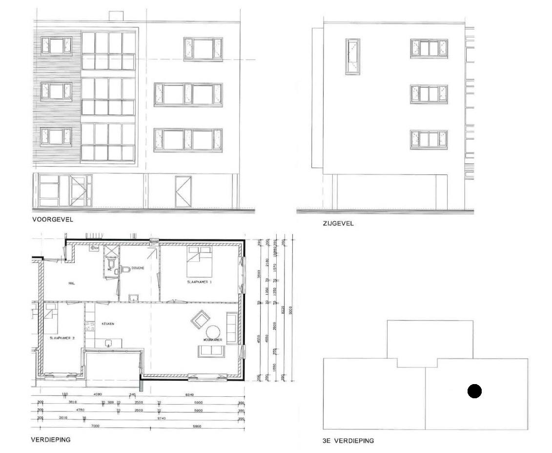
  • Etage: 3e verdieping
  • Aantal kamers: 3
  • Oppervlakte: 67 m2
  • Buitenruimte: Balkon
  • Status: Onder voorbehoud toegewezen
  • Verhuurder: Casade Woondiensten
  • Indicatie bruto huurprijs: € 858,05
  • Indicatie netto huurprijs: € 764,14

Tweede Zeine

  • Noord-Brabant
  • 3 Kamers

Op de derde etage is een driekamerwoning beschikbaar gekomen. De woning heeft een woonkamer (voorzien van laminaat) met open keuken en er zijn twee slaapkamers. Verder is er een inpandige berging in het appartementen-complex aanwezig. Vanuit de woonkamer heeft u toegang tot het balkon dat gelegen is op het zuiden. Vanuit de woning is er een goed uitzicht rondom en kijkt u uit op een grasveld. De woning is gelegen in een rustige buurt en omgeving. Op de plattegrond vindt u de indeling van de woning.

Downloads

Waalwijk Rode en Witte wijk

Nabij het natuurgebied de Loonse en Drunense Duinen ligt het Fokusproject Waalwijk Rode & Witte Wijk. De dertien woningen liggen in een rustige buurt, op ongeveer tien autominuten van De Efteling. Alle woningen hebben drie of vier kamers en een balkon of tuin. De Rode en Witte Wijk is een moderne wijk die geheel is geherstructureerd. Verspreid door de wijk zijn diverse winkels en voorzieningen.