Navigatie overslaan

In verband met een technische storing komen bij sommige e-mailadressen onze berichten mogelijk niet aan. Het gaat vooral om mailadressen van: Hotmail, Outlook, XS4ALL & Live. We werken aan een oplossing. Onze excuses voor het ongemak!

Kenmerken

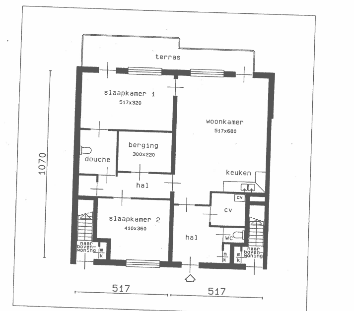
Let op! Dit zijn algemene foto's van het Fokusproject en de omgeving. Ze zijn niet van de specifieke woning. Zie de plattegrond van de woning onder het kopje Downloads.

  • Etage: Begane grond
  • Aantal kamers: 3
  • Oppervlakte: 70 m2
  • Buitenruimte: Tuin
  • Status: Binnenkort beschikbaar
  • Verhuurder: Woonwenz
  • Indicatie bruto huurprijs: € 714,22
  • Indicatie netto huurprijs: € 713,02

Seringenstraat

  • Limburg
  • 3 Kamers

De woning ligt op de begane grond en is gelijkvloers. Er is een woonkamer met open keuken en er zijn twee slaapkamers. De berging in de hal biedt ruimte voor het plaatsen van een scootmobiel. Er is een badkamer, een tweede toilet en nog een extra berging. In de directe omgeving van de woning is een aangelegd park. De tuin is bereikbaar via de woonkamer en via de grootste slaapkamer.

Downloads

Venlo Blerick

Fokus Venlo Blerick telt vijftien ruime grondgebonden woningen met voor- en achtertuin en drie of vier kamers. Het project ligt aan rustige straten in een moderne, levendige wijk met koop- en huurwoningen. Er is voldoende parkeerruimte. Gemeente Venlo investeert in een prachtige parkachtige omgeving. Een bushalte en een winkelcentrum zijn vlakbij. Het centrum van Venlo en Blerick liggen op respectievelijk 3,8 km en 2 km.