Navigatie overslaan

In verband met een technische storing komen bij sommige e-mailadressen onze berichten mogelijk niet aan. Het gaat vooral om mailadressen van: Hotmail, Outlook, XS4ALL & Live. We werken aan een oplossing. Onze excuses voor het ongemak!

Kenmerken

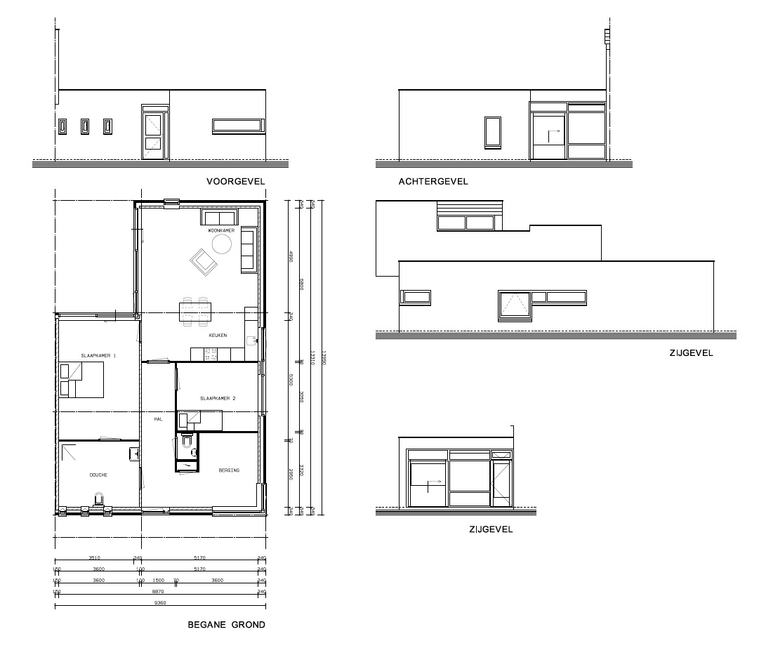
Let op! Dit zijn algemene foto's van het Fokusproject en de omgeving. Ze zijn niet van de specifieke woning. Zie de plattegrond van de woning onder het kopje Downloads.

  • Etage: Begane grond
  • Aantal kamers: 3
  • Oppervlakte: 65 m2
  • Status: Onder voorbehoud toegewezen
  • Verhuurder: Casade Woondiensten
  • Indicatie bruto huurprijs: € 770,05
  • Indicatie netto huurprijs: € 764,14

Generaal Cronjéstraat

  • Noord-Brabant
  • 3 Kamers

Het betreft een driekamer woning op de begane grond. Er is een woonkamer met open keuken en er zijn 2 slaapkamers. Er is een badkamer en een ruime inpandige berging. Tevens is er een tweede toilet aanwezig. Kijkt u op de plattegrond voor de indeling van de woning.

Downloads

  • Waalwijk Generaal Cronjéstraat H 130526
    Download

Waalwijk Rode en Witte wijk

Nabij het natuurgebied de Loonse en Drunense Duinen ligt het Fokusproject Waalwijk Rode & Witte Wijk. De dertien woningen liggen in een rustige buurt, op ongeveer tien autominuten van De Efteling. Alle woningen hebben drie of vier kamers en een balkon of tuin. De Rode en Witte Wijk is een moderne wijk die geheel is geherstructureerd. Verspreid door de wijk zijn diverse winkels en voorzieningen.