Navigatie overslaan

In verband met een technische storing komen bij sommige e-mailadressen onze berichten mogelijk niet aan. Het gaat vooral om mailadressen van: Hotmail, Outlook, XS4ALL & Live. We werken aan een oplossing. Onze excuses voor het ongemak!

Kenmerken

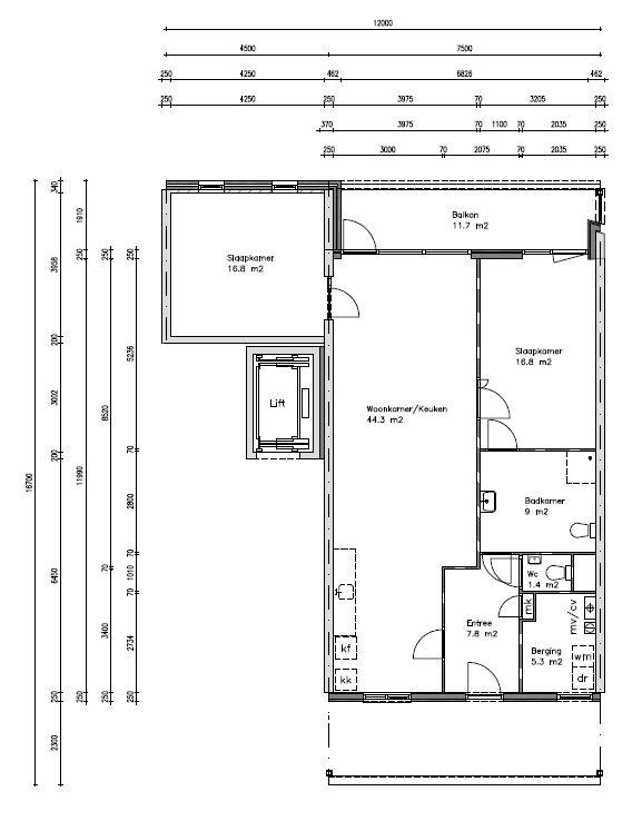
Let op! Dit zijn algemene foto's van het Fokusproject en de omgeving. Ze zijn niet van de specifieke woning. Zie de plattegrond van de woning onder het kopje Downloads.

  • Etage: 4e verdieping
  • Aantal kamers: 3
  • Oppervlakte: 94 m2
  • Buitenruimte: Balkon
  • Status: Onder voorbehoud toegewezen
  • Verhuurder: Woonbedrijf Ieder1
  • Indicatie bruto huurprijs: € 932,93
  • Indicatie netto huurprijs: € 900,43

Kranenburg

  • Overijssel
  • 3 Kamers

Deze woning heeft drie kamers en ligt op de vierde etage. De woning heeft een woonkamer met open keuken, en vanuit de woonkamer is het balkon (11,7 m2) toegankelijk. Er is veel leefruimte en de woning is gelegen in groene buitenwijk van Deventer. Kijkt u op de plattegrond voor meer informatie. De woning is naar verwachting 25 maart 2026 beschikbaar.

Downloads

Deventer Het Brunsvelt

Fokus Deventer Het Brunsvelt telt vijftien fokuswoningen. De appartementen hebben drie kamers en liggen verspreid op de eerste tot en met vierde etage. De appartementen zijn modern en beschikken over veel leefruimte met daarnaast een balkon of serre. Het Fokusproject ligt aan een rustige straat in de groene buitenwijk Het Brunsvelt. In de nabijheid zijn twee winkelcentra met tal van winkels en voorzieningen. Op vijf minuten afstand is een zwembad. Er is een goede busverbinding met binnenstad en centraal station.