Navigatie overslaan

In verband met een technische storing komen bij sommige e-mailadressen onze berichten mogelijk niet aan. Het gaat vooral om mailadressen van: Hotmail, Outlook, XS4ALL & Live. We werken aan een oplossing. Onze excuses voor het ongemak!

Kenmerken

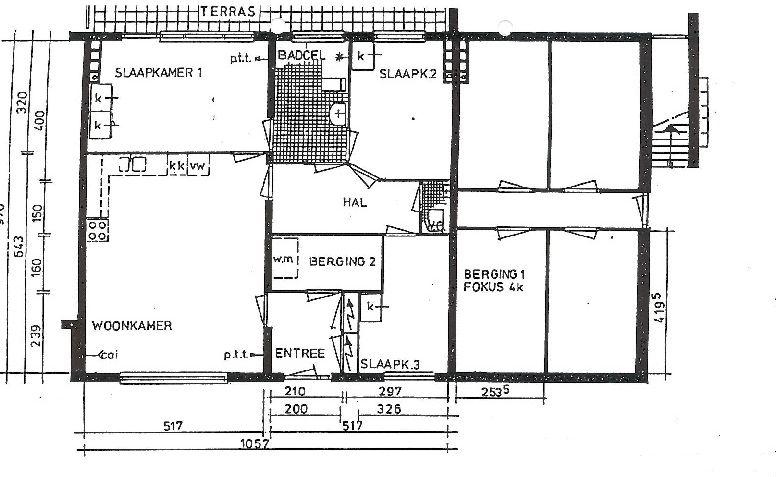
Let op! Dit zijn algemene foto's van het Fokusproject en de omgeving. Ze zijn niet van de specifieke woning. Zie de plattegrond van de woning onder het kopje Downloads.

  • Etage: Begane grond
  • Aantal kamers: 4
  • Oppervlakte: 90 m2
  • Buitenruimte: Tuin
  • Status: Direct beschikbaar
  • Verhuurder: Jutphaas Wonen

Heerlerschans

  • Utrecht
  • 4 Kamers

Deze gelijkvloerse woning beschikt over een lichte woonkamer met open keuken en drie slaapkamers. Twee slaapkamers grenzen direct aan de tuin, waarvan de grootste slaapkamer toegang biedt tot de buitenruimte. In de woning bevindt zich een praktische berging met aansluiting voor de wasmachine. Daarnaast is er een extra berging naast de woning aanwezig. De tuin ligt op het oosten.

De keuken is in hoogte verstelbaar en er is een plafondlift aanwezig in de woning.

In de directe omgeving vindt u diverse winkels, openbaar vervoer en het groene park Oudegein. Er is ruime parkeergelegenheid aanwezig.

De huurprijs moet nog vastgesteld worden.

Wie zoeken wij?

  • Je hebt ongeveer 5 tot 20 uur ADL-assistentie nodig per week
  • Je hebt geen ademhalingsondersteuning nodig

Degene die het meest aan dit profiel voldoet komt als eerste in aanmerking voor de woning. Reageer ook als je niet aan alle punten voldoet.

Downloads

Nieuwegein Fokkesteeg

Fokus Nieuwegein Fokkesteeg telt vijftien grondgebonden woningen met tuin. De woningen hebben drie of vier kamers en liggen in de rustige woonwijk Fokkesteeg op steenworp afstand van het oude stadsdeel Vreeswijk. De wijk ligt tussen het centrale park Oudegein in het westen en het Merwedekanaal in het oosten. Voorzieningen als een buurthuis, gezondheidscentrum, warme bakker en supermarkt zijn in de directe nabijheid. De tramhalte (rolstoeltoegankelijk) brengt u zo naar het gezellige centrum van Nieuwegein of naar het bruisende Utrecht.