Navigatie overslaan

Kenmerken

Let op! Dit zijn algemene foto's van het Fokusproject en de omgeving. Ze zijn niet van de specifieke woning. Zie de plattegrond van de woning onder het kopje Downloads.

  • Etage: 2e verdieping
  • Aantal kamers: 3
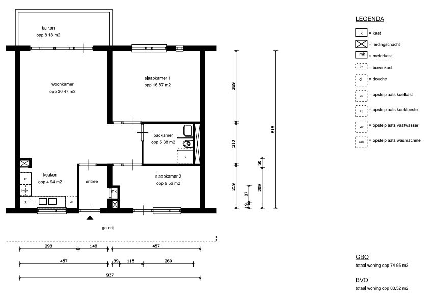
  • Oppervlakte: 75 m2
  • Buitenruimte: Balkon
  • Status: Direct beschikbaar
  • Verhuurder: Portaal
  • Indicatie bruto huurprijs: € 862,47
  • Indicatie netto huurprijs: € 713,02

Twente

  • Utrecht
  • 3 Kamers

Deze driekamerwoning heeft een woonkamer met een open keuken en 2 slaapkamers. Het balkon is ongeveer 8m2. Winkelcentrum en huisartsen zijn in de buurt (minder dan 5 minuten). 

Downloads

Utrecht Lunetten

Fokus Utrecht Lunetten telt vijftien ruime woningen met drie of vier kamers. De zes grondgebonden woningen hebben een voor- en achtertuin, de appartementen hebben een balkon. De woningen staan in een rustige straat en zijn goed bereikbaar. Een gezondheidscentrum, een winkelcentrum en buurthuis zitten om de hoek. Lunetten is een kinderrijke buitenwijk met diverse voorzieningen. De verbindingen met het centrum van Utrecht zijn prima, onder andere via station Lunetten op vijfhonderd meter van de Fokuswoningen.