Navigatie overslaan

In verband met een technische storing komen bij sommige e-mailadressen onze berichten mogelijk niet aan. Het gaat vooral om mailadressen van: Hotmail, Outlook, XS4ALL & Live. We werken aan een oplossing. Onze excuses voor het ongemak!

Kenmerken

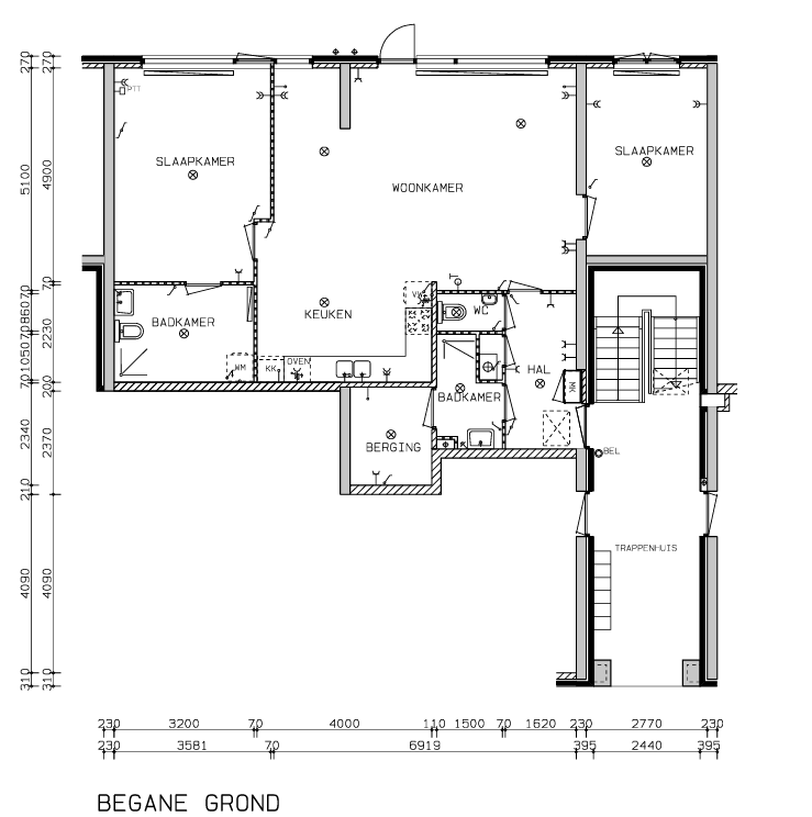
Let op! Dit zijn algemene foto's van het Fokusproject en de omgeving. Ze zijn niet van de specifieke woning. Zie de plattegrond van de woning onder het kopje Downloads.

  • Etage: Begane grond
  • Aantal kamers: 3
  • Oppervlakte: 89 m2
  • Buitenruimte: Tuin
  • Status: Direct beschikbaar
  • Verhuurder: Ymere
  • Indicatie bruto huurprijs: € 743,19
  • Indicatie netto huurprijs: € 713,02

Binnenhof

  • Flevoland
  • 3 Kamers

Deze driekamerwoning ligt op de begane grond van een complex met drie verdiepingen. De tuin/het terras ligt aan het binnenterrein van het complex waar geen auto's komen. De woning heeft een woonkamer met open keuken en er zijn twee slaapkamers. Er is een berging.  Het centrum, winkels en de wekelijkse markt (vrijdag) bevinden zich op korte afstand.
Kijkt u op de plattegrond voor meer informatie. 

Downloads

Almere Haven Binnenhof

Fokus Almere Haven Binnenhof bestaat uit vijftien grondgebonden woningen met twee, drie of vier kamers. De meeste woningen hebben een ruime tuin. De woningen zijn deels op een woonerf gelegen. Het Fokusproject ligt op steenworp afstand van het rustige centrum van Almere Haven. De gezellige Havenkom met diverse restaurants en terrasjes is vlakbij. De wijk De Hoven is zo opgezet dat er vooral bestemmingsverkeer komt. Het is het eerste Fokusproject van Nederland, op een mooie locatie dichtbij bos en water.