Roggestraat
Kenmerken
Let op! Dit zijn algemene foto's van het Fokusproject en de omgeving. Ze zijn niet van de specifieke woning. Zie de plattegrond van de woning onder het kopje Downloads.
- Etage: 2e verdieping
- Aantal kamers: 3
- Oppervlakte: 63 m2
- Buitenruimte: Balkon
- Status: Onder voorbehoud toegewezen
- Verhuurder: De Woonmensen
- Indicatie bruto huurprijs: € 787,64
- Indicatie netto huurprijs: € 713,02
Roggestraat
- Gelderland
- 3 Kamers
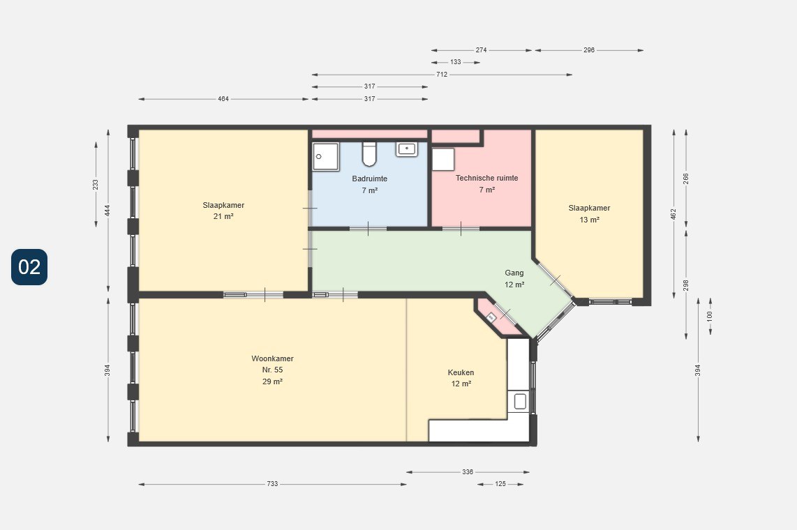
De woning heeft een woonkamer met open keuken. Er zijn 2 slaapkamers van 21,2 m2 en 13 m2. Verder beschikt de woning over een balkon en is er een inpandige berging. Kijkt u op de plattegrond voor de indeling. Beschikbare overnames: kastenwand slaapkamer, standaard keuken, laminaatvloer, gordijnen.
Downloads
-
Apeldoorn Beekpark Roggestraat FFDownload
Apeldoorn Beekpark
Voor wie van het gezellige stadsleven houdt is Fokus Apeldoorn Beekpark ideaal. In Apeldoorn Beekpark verhuurt woningcorporatie De Woonmensen dertien Fokuswoningen. Deze drie- en vierkamerappartementen liggen verspreid over twee appartementencomplexen, gebouwd in 2004: de Vossestede en de Museumstede. De appartementen in de Museumstede hebben een loggia in de woonkamer en er is een gemeenschappelijk dakterras. In de Vossestede hebben de appartementen een balkon bij de voordeur en een gemeenschappelijke binnentuin. Het project ligt aan de rand van het gezellige centrum van Apeldoorn. Een groot winkelcentrum, het Codamuseum (moderne kunst), de bibliotheek en de schouwburg zijn in de buurt te vinden. Een bushalte is direct voor de deur. Apeldoorn is een groene, vriendelijke en gezellige stad aan de rand van de Veluwe.