Navigatie overslaan

Kenmerken

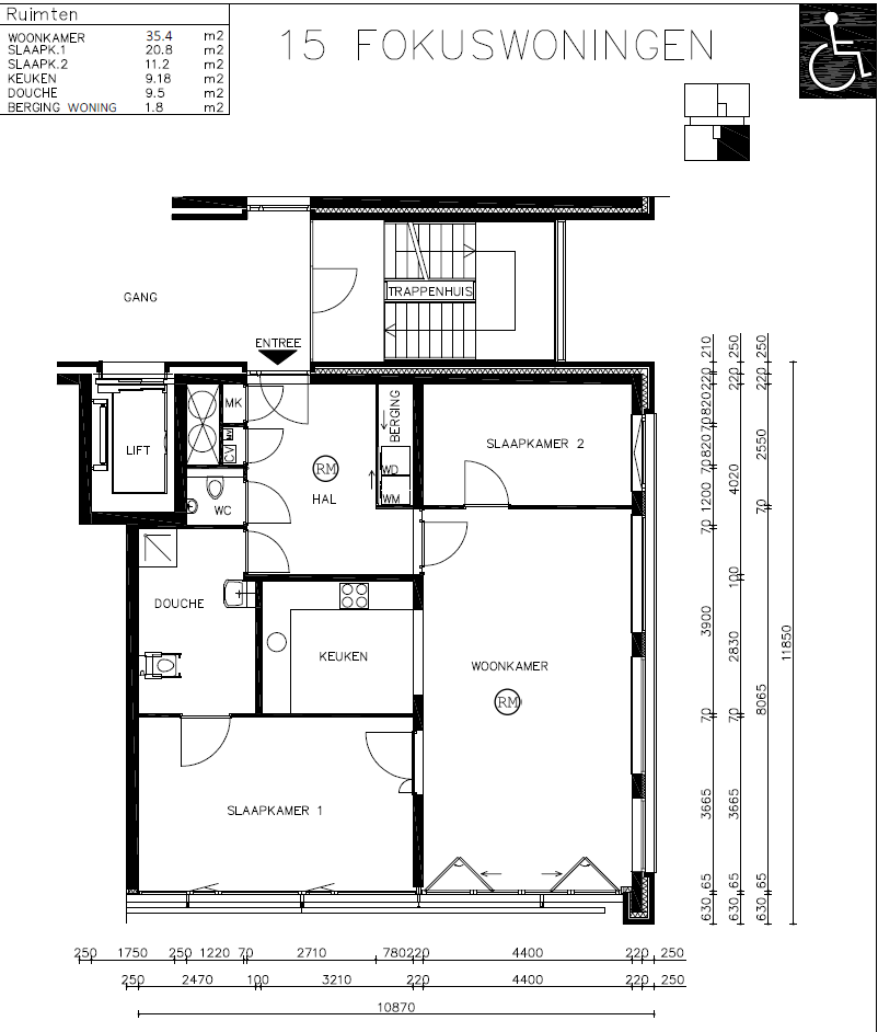
Let op! Dit zijn algemene foto's van het Fokusproject en de omgeving. Ze zijn niet van de specifieke woning. Zie de plattegrond van de woning onder het kopje Downloads.

  • Etage: 15e verdieping
  • Aantal kamers: 3
  • Oppervlakte: 98 m2
  • Buitenruimte: serre
  • Status: Binnenkort beschikbaar
  • Verhuurder: Volkshuisvesting Arnhem
  • Indicatie bruto huurprijs: € 1.014,03
  • Indicatie netto huurprijs: € 932,93

Abe Lenstrahof

  • Gelderland
  • 3 Kamers

In de nieuwbouwwijk Stadseiland ligt deze woning met woonkamer en half open keuken van in totaal 35,5 m2 groot. In de hal is ruimte om eventueel een scootmobiel te plaatsen. De wijk is ruim en groen opgezet en er is een winkelcentrum met supermarkt vlakbij het Fokusproject.

Downloads

  • Arnhem Stadseiland Abe Lenstrahof BCG 270226
    Download

Arnhem StadsEiland

In de hoogste woontoren van Arnhem is Fokus Arnhem Stadseiland gevestigd. Woningcorporatie Volkshuisvesting Arnhem verhuurt de vijftien woningen. De nieuwe wijk is vlakbij het centrum en aan de oevers van de Rijn. De woningen zijn verspreid gevestigd in de Toren van Gelre en het complex is 55 meter hoog en bestaat uit zeventien etages. De Fokuswoningen hebben drie kamers en een serre. Het gebouw ligt aan het Abe Lenstrahof. Dit is direct bij de rotonde op de hoek van de Huissensestraat en de Stadswaardenlaan.  In de toren zijn twee liften en een grote rolstoeltoegankelijke parkeerkelder.