Navigatie overslaan

Kenmerken

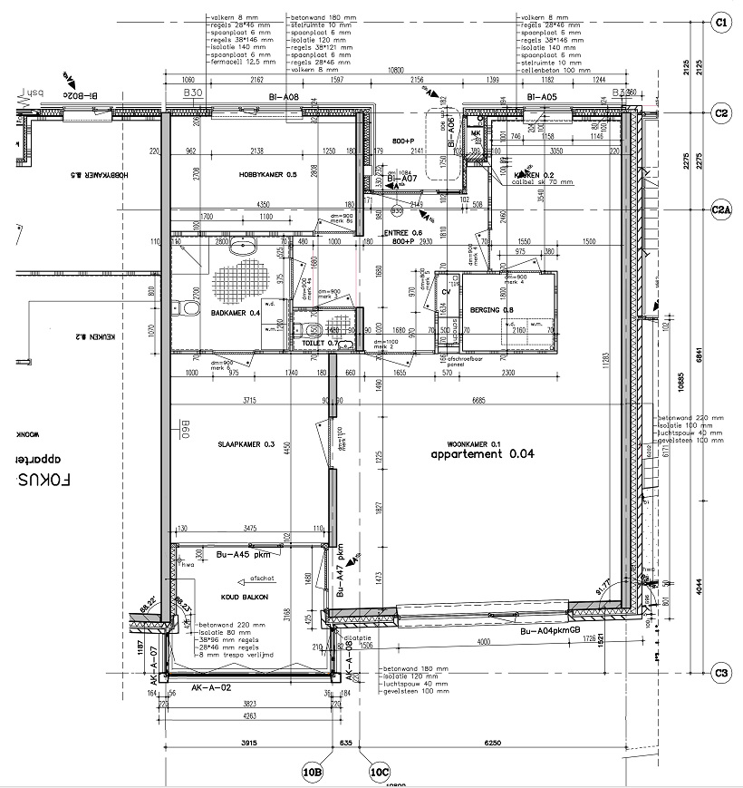
Let op! Dit zijn algemene foto's van het Fokusproject en de omgeving. Ze zijn niet van de specifieke woning. Zie de plattegrond van de woning onder het kopje Downloads.

  • Etage: 1e verdieping
  • Aantal kamers: 3
  • Oppervlakte: 72 m2
  • Buitenruimte: Balkon
  • Status: Binnenkort beschikbaar
  • Verhuurder: Welbions
  • Indicatie bruto huurprijs: € 989,27
  • Indicatie netto huurprijs: € 900,07

Paul Krugerstraat

  • Overijssel
  • 3 Kamers

Deze 3-kamerwoning heeft een open keuken. Er zit een standaard keuken in de woning met een inbouwkookplaat en afzuigkap. Er is een apart toilet aanwezig. In de badkamer is een tweede toilet. De woning heeft een ruim balkon. Op de begane grond is een individuele berging. 

Het appartement ligt dichtbij het centrum van Hengelo. Op korte afstand bevinden zich 2 supermarkten.

Wie zoeken wij?

  • Je hebt ongeveer 5 tot 20 uur ADL-assistentie nodig per week
  • Je hebt geen ademhalingsondersteuning nodig
  • Op dit project is het team ook geschoold in bedienen CPAP apparaat

Degene die het meest aan dit profiel voldoet komt als eerste in aanmerking voor de woning. Reageer ook als je niet aan alle punten voldoet.

Downloads

Hengelo O-Kwadraat

 Hengelo O-Kwadraat bestaat uit twaalf ruim opgezette woningen, verdeeld over twee appartementencomplexen. De woningen hebben drie kamers en een balkon of serre. De gebouwen zijn onder architectuur gebouwd en hebben een eigentijdse uitstraling. Het project is gelegen aan de rand van centrum, in een buurt met prachtige herenhuizen en eengezinswoningen. De woningen liggen aan de doorgaande weg richting Oldenzaal/Enschede. Het NS-station ligt op tien minuten, de bushalte is voor de deur. Er is in de directe omgeving een ruime keuze aan winkels. Meer weten? Bezoek de open dag op 27 augustus!