Navigatie overslaan

Kenmerken

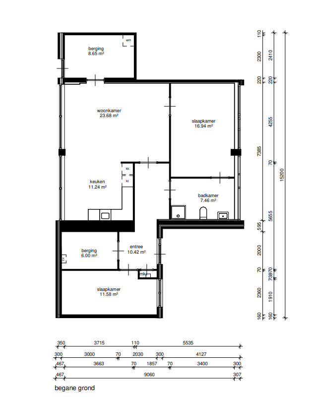
Let op! Dit zijn algemene foto's van het Fokusproject en de omgeving. Ze zijn niet van de specifieke woning. Zie de plattegrond van de woning onder het kopje Downloads.

  • Etage: Begane grond
  • Aantal kamers: 3
  • Status: Binnenkort beschikbaar
  • Verhuurder: Trivire
  • Indicatie bruto huurprijs: € 734,25
  • Indicatie netto huurprijs: € 731,00

Reageer voor 27 oktober 2025

Reageren op deze woning

Ruys de Beerenbrouckweg

  • Zuid-Holland
  • 3 Kamers

In een rustige woonwijk in een buitenwijk van Dordrecht ligt deze driekamerwoning. De woning heeft voldoende bergruimte en een aparte wasruimte. De woning is in de buurt van twee winkelcentra. Dit is goed bereikbaar met de rolstoel of scootmobiel.

Er is een grote renovatie van de wijk gepland.

 

 

Wie zoeken wij?

  • Je hebt ongeveer 20 uren ADL-assistentie nodig per week
  • Je kunt hier wonen als je ademhalingsondersteuning nodig hebt
  • Je hebt duo-assistentie nodig
  • Op dit project is het team ook geschoold in EVA-handelingen (naar behoefte te scholen op het Fokusproject).

Degene die het meest aan dit profiel voldoet komt als eerste in aanmerking voor de woning. Reageer ook als je niet aan alle punten voldoet.

Downloads

  • Dordrecht Crabbehof Ruys de Beerenbrouckweg BJD 201025
    Download

Dordrecht Crabbehof

Fokus Dordrecht Crabbehof telt twaalf eengezinswoningen met twee of drie slaapkamers en een tuin. De woningen liggen in een rustige straat in een buitenwijk van de oudste stad van Nederland. Dordrecht ligt op een eiland en heeft een prachtig oud centrum. De gemeente besteedt veel aandacht aan de rolstoeltoegankelijkheid van de diverse aanwezige voorzieningen.