M.A. de Ruijterstraat
Kenmerken
Let op! Dit zijn algemene foto's van het Fokusproject en de omgeving. Ze zijn niet van de specifieke woning. Zie de plattegrond van de woning onder het kopje Downloads.
- Etage: 7e verdieping
- Aantal kamers: 3
- Status: Direct beschikbaar
- Verhuurder: Woonbron
Reageer voor 27 februari 2026
Reageren op deze woningM.A. de Ruijterstraat
- Zuid-Holland
- 3 Kamers
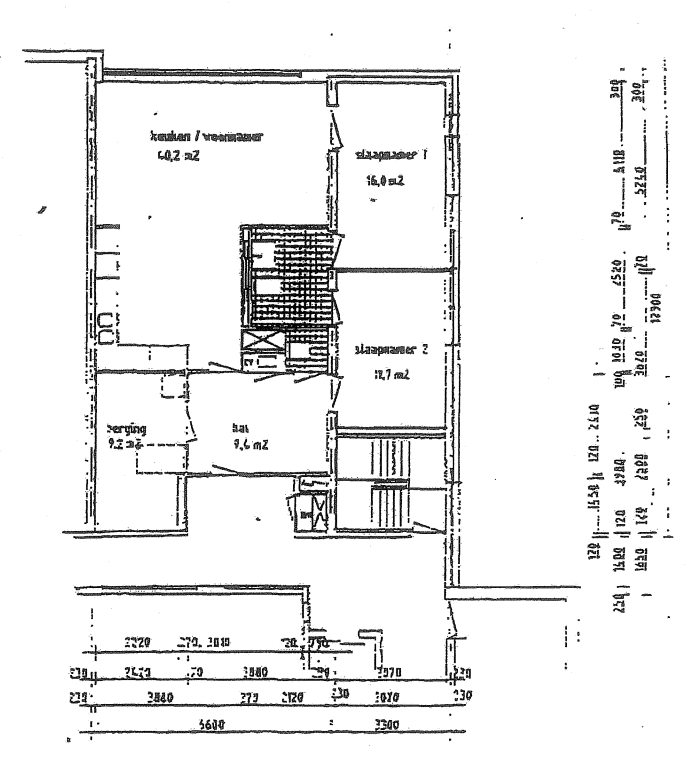
Een driekamerwoning op de 7e etage. De woning beschikt over een woonkamer met open keuken en twee slaapkamers. Er is een apart gastentoilet en een inpandige berging.
Downloads
-
FOKUSWONEN22222Download
Spijkenisse Zeeheldenbuurt
Fokus Spijkenisse Zeeheldenbuurt bestaat uit dertien volledig aangepaste appartementen met drie of vier kamers. Een aantal appartementen is voorzien van een balkon. De appartementen zijn gevestigd in een nette atriumflat op ongeveer tweehonderd meter van het winkelcentrum. Ook het metro- en busstation Spijkenisse Centrum zijn nabijgelegen. Daardoor is bijvoorbeeld Rotterdam goed bereikbaar. Spijkenisse heeft veel faciliteiten, waaronder een ziekenhuis, een theater, een ruim winkelaanbod en een gezellige markt (elke dinsdag en zaterdag).